Unique Collection Dette produktet forhandles i fysiske kjøkken- og hvitevarebutikker
BØRSTELØS MOTOR
Autoaspiration sensorteknologi Når det er viktig å kunne fokusere på matlaging, kan du aktivere Autoaspiration-funksjonen. Ventilatorens sugestyrke justeres automatisk avhengig av antallet kokesoner som er i bruk, kombinert med effekten de er stilt inn på.
Ettersug - 15 min En del av EICO´s produkter har ettersug eller timerfunksjon, som startes etter matlaging og stopper automatisk etter en viss tid
Vis alle Vis alle
Varenr.: 5796
Aero 80 N A
Platetopp med integrert ventilator og høy ytelse
kr 22 995,00
- Focus
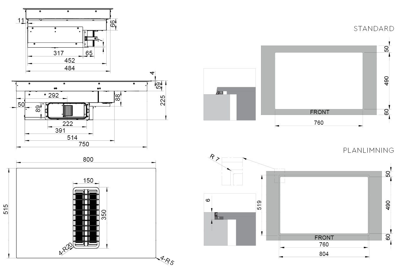
- Produkt (BxDxH) 800 x 515 x 255 mm
- Betjening
- Slidertouch kontroll
- Slidertouch kontroll + sensor
- Antal nivåer 9 trinn
- Intensiv trinn 1 intensiv trinn
- Luftstrøm min-max 227 - 448 m3/t
- Luftstrøm (intensiv) 621 m3/t
- Lydeffekt 36 - 65 dB(A)
- Betjening (platetopp) Slidertouch kontroll
- Varmeinnstilling 10 trinn
-
- Yteevne opp til hele 9,5 m/s
- Børsteløs motor
- 2 x brofunksjon
- Utformet til å bevare ekstra skapsplass
- Ekstrem støysvak og energiklasse A+
- Børsteløs motor => mer støysvak og lenger levetid




















